CASE STUDYMARCO ISLAND POOL STABILIZATION

HELICAL PILES INSTALLED FOR NEW MARCO ISLAND SWIMMING POOLPROJECT INFORMATION

ANALYSIS

Throughout Southwest Florida and the country, helical piles have become an integral part of swimming pool construction. With the ability to provide exceptional support for the immense weight modern swimming pools report, helical anchors are a great choice in strengthening these foundations.

Our team was approached by Aquatic Architects of Southwest Florida to provide foundation support in the installation of a custom swimming pool at a Marco Island Florida residence. Eager to assist, we advised the client of their options and ultimately were awarded the work.

SOLUTION

After analyzing the project and requirements set forth, our team mobilized a plan to provide exceptional support for this swimming pool project. Utilizing our specialized equipment, we were able to complete the project within 1 day, thus minimizing disruption to the job site and for the project itself.

RESULT

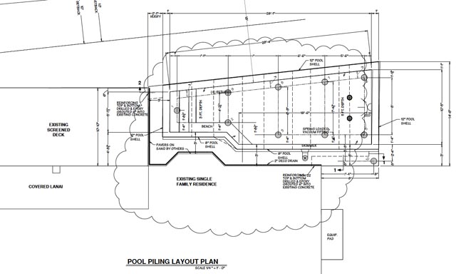
Our team installed 10 helical piles at this residence to support the future swimming pool installation. Due to the existing soil conditions, we installed 23 extensions in order to meet the appropriate torque specifications needed to provide ideal support. With helical piles installed by Coastal Foundation Solutions, this local pool builder could rest easy knowing they had a proper foundation in which to create a stunning backyard oasis for their client.

PRODUCTS

On this project, we installed the following:

  • RS2875.217 12” x 14” 84” L Galvanized Round Shaft Lead Sections
  • RS2875.217 84” L Galvanized Round Shaft Extensions
  • Galvanized Termination Caps

WE WELCOME THE OPPORTUNITY TO EARN YOUR BUSINESS

All rights reserved 2025. | Privacy Policy | FL Construction License: CBC1263386 | Website Managed by Flo Digital Marketing