Coastal Foundation Solutions

CASE STUDY

FORT MYERS, FL POOL STABILIZATION

SWIMMING POOL HELICAL INSTALLATION

PROJECT INFORMATION

ANALYSIS
Southwest Florida is riddled with varying conditions. When homeowners turn to the area’s top swimming pool contractors to help build their backyard oasis, we are usually called. For years, our team has installed helical piles to provide superior foundations for swimming pools of all sizes throughout the area. A proper swimming pool foundation ensures a strong foundation, and peace of mind from settling.
SOLUTION
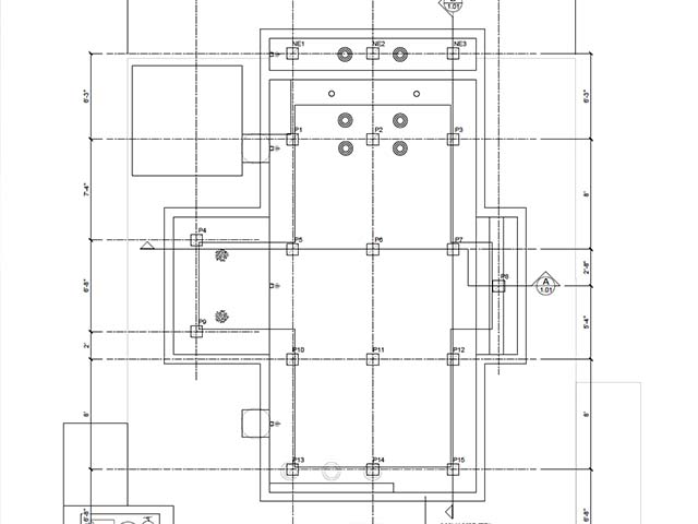
After analyzing the project and requirements provided by the pool contractor for this project, our administrative staff and team went to work. We proposed the installation of 18 helical piles to properly support the soon to be built swimming pool.
RESULT
In record time utilizing our specialized equipment, our dedicated helical installation team installed 18 helical piles and 23 additional extensions to a 10-ton working capacity. Once put into the ground, we installed galvanized termination caps paving the way for the pool to be formed, shot, and finished!
PRODUCTS
On this project, we installed the following:

WE WELCOME THE OPPORTUNITY TO EARN YOUR BUSINESS